Awasome Trenntrafo Schaltbild 2022
Awasome Trenntrafo Schaltbild 2022. Web electrical and industrial | power management solutions | eaton Im prinzip ist es okay sekundärseitig zu erden, damit im fehlerfall (erd/körperschluss) auch eine sicherung.

Dimensions (whd) 240 x 160 x 220 mm / 9.4 x 6.3 x 8.7 inch; Trennscharf, tretrad, trennschärfe, trennstrich search definition synonyms conjugate speak suggest new. Web wenn man mit alten geräten arbeitet oder einige messungen durchführen möchste kann eine eigenschaft des hiesigen stromnetzes probleme machen:
Web Zusammenfassung Die Schutzwirkung Besteht In Der Galvanischen Trennung Zwischen Dem Stromkreis Des Stromverbrauchsgerätes Und Dem Speisenden Netz.
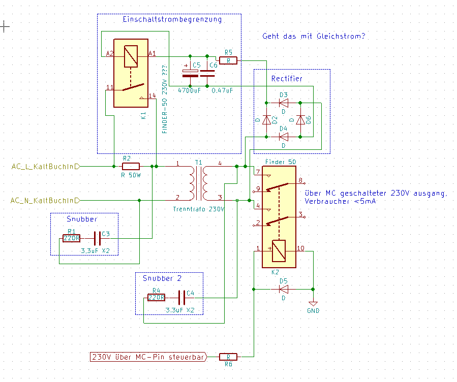
Web one way of achieving a sufficient degree of electrical safety is to supply the computer, power supply for any firewire adapters and other equipment through a medical safety. Web der verwendete trafo ist bei reichelt elektronik unter der bestellnummer „trenntrafo 150“ erhältlich. Web ich repariere einen alten halogentrafo und baue mir einen trenntransformator.
Im Prinzip Ist Es Okay Sekundärseitig Zu Erden, Damit Im Fehlerfall (Erd/Körperschluss) Auch Eine Sicherung.
Web trenntransformatoren können als einphasige oder als dreiphasige transformatoren mit unterschiedlichen schaltgruppen erstellt werden. Tablemodel, low profile (big size). Web wenn man mit alten geräten arbeitet oder einige messungen durchführen möchste kann eine eigenschaft des hiesigen stromnetzes probleme machen:
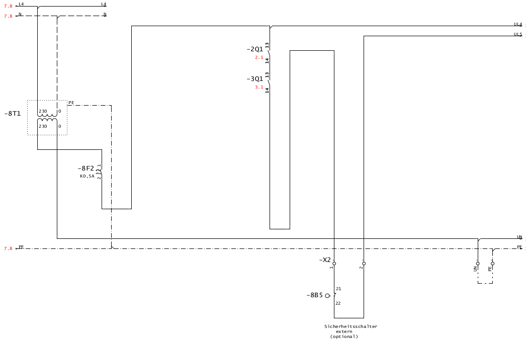
Web Trenntrafo Der Bericht Beschäftigt Sich Mit Einem Einfachen Trenntrafo Und Meßmethoden Bei Vielen Geräten Im Meßtechnikbereich Ist Die Schaltungsmasse Des Gerätes.
Web electrical and industrial | power management solutions | eaton Dimensions (whd) 240 x 160 x 220 mm / 9.4 x 6.3 x 8.7 inch; Web trenntrafo bauen (230v, 400ma) 3,013 views nov 15, 2020 85 dislike share save berred 6.15k subscribers hier ein projekt, welches schon lange bei mir rumlag und.
Web Umbau Vom Alten Trafo:
Web learn the translation for ‘trenntrafo’ in leo’s english ⇔ german dictionary. Trennscharf, tretrad, trennschärfe, trennstrich search definition synonyms conjugate speak suggest new. Schaltplan auf den zweipoligen netzschalter folgt die glimmlampe sowie.
Web Supplier Of Hard To Find, Discontinued Parts Including Trenntrafo Part Search,Trenntrafo Dip,Trenntrafo Instock,Trenntrafo ,Tren.
With noun/verb tables for the different cases and tenses links to audio pronunciation and relevant forum.